Обяви За нас Контакти
Продава КЪЩА
град София, м-т Детски град
500 000 €
977 915.00 лв.

(1 548 €, 3 027.62 лв./m2)
Цената е без ДДС
Коригирана в 10:18 на 12 март, 2026 год.
Обявата е посетена 1782 пъти.
Площ:
323 m2
Двор:
122 m2
Газ:
НЕ
ТEЦ:
НЕ
Строителство:
Тухла, Ще бъде въведен в експлоатация 2026 г.

Описание на имота:


Референтен номер: 72

РС ЕСТЕЙТС предлага за продажба:

На Вашето внимание редова къща на три нива в комплекс Aria Park Townhouses в местност Детски Град, Панчарево, с Акт 14. Разположен на естествен хълм, комплексът осигурява целогодишно максимално слънцегреене и чист въздух, а всяка къща е с оптимално южно изложение и разкрива красиви гледки към Витоша.
Цени Без ДДС

Зелени площи за общо ползване: 695,89 кв.м.
Алеи, подходи и паркинг за гости: 656,67 кв.м.

Локация:

Комплекса се намира в кв. Панчарево гр. София в местност Детски Град, в непосредствена близост до Англо-Американско училище. Достъпът до централната и периферна градска част е бърз и лесен посредством Самоковско шосе и Околовръстен път. В близост са Бизнес парк Младост, Sofia Ring Mall, IKEA, хипермаркети и спирки на обществен градски транспорт.

Разпределението е:

На първо ниво: дневна + кухня (34,73 кв.м.), антре (4,79 кв.м.), WC (1,93 кв.м.), склад (1,94 кв.м.), гараж (32,45 кв.м.) и двор с градина (122,19 кв.м.).
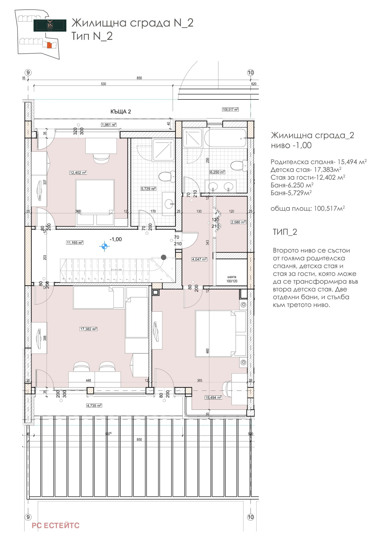
Второто ниво се състои от голяма родителска спалня (15,49 кв.м.) с дрешник (2,58 кв.м.), детска стая (17,38 кв.м.) и стая за гости (12,40 кв.м.), две отделни бани, съответно по 6,25 кв.м. и 5,72 кв.м.
Последното ниво се състои от отворено пространство, място за офис или стая за гости (34,06 кв.м.) с баня (4,1 кв.м.).

Етапи на строителство:
Акт 14: юни 2025г.
Акт 15: октомври 2025г.

Предимства на имота:

Конструкцията на сградите е монолитна, със стоманобетонни колони, шайби, греди и плочи. Външните стени са тухлени от решетъчни тухли Винербергер , покривът е топъл плосък. Отоплението на помещенията на сградата през зимата се осигурява от термопомпа въздух-вода и радиаторно отопление. Прозорците и вратите са PVC-петкамерни и алуминиеви витрини на първите етажи, входната врата е от масив.
Инвеститор:
Зад проекта стои строителна компания с повече от 15-годишен опит в изграждането на жилищни проекти. Екипът е съставен от строителни инженери, проектирали и изградили голям брой жилищни сгради в столицата.Ref.1279

Оглед на имота:

Можем да организираме оглед на имота в удобно за Вас време. За целта, свържете се с отговорния за офертата брокер и му кажете кога бихте искали да направите оглед.

Резервация на имота:

Имотът може да бъде резервиран и свален от продажба със заплащане на депозит, след което се прекратява провеждането на огледи с други купувачи и започва подготовка на документите за сключване на предварителен и окончателен договор. Свържете се с отговорния брокер за този имот за подробна информация.

Финансиране на имота:

Агенцията си партнира с най-големия кредитен посредник в България и можем да ви съдействаме с преференциални условия за жилищно кредитиране.
Особености
Тухла
Асансьор
С гараж
Контрол на достъпа
В затворен комплекс
За контакт:
0885567000
Брокер:
Моника Александрова
0885567000
Офис: 0885567000
Още оферти от брокера: Продава | Дава под наем | Купува | Наема
Агенция:
РС ЕСТЕЙТС
0888112226
РС ЕСТЕЙТС logo
Медал за прослужено време
В imot.bg от 2023 г.
rs-estates.imot.bg
Адрес:
област София, гр. София, Манастирски ливади, ул. Пирин 91, ет. 5
http://www.rs-estates.com
ИЗПРАТИ ЗАПИТВАНЕ
ИЗПРАТИ ЗАПИТВАНЕТО

Продава КЪЩА
град София, м-т Детски град
Обява: 1j170983821170347

500 000 €
977 915.00 лв.
(1 548 €, 3 027.62 лв./m2)

Цената е без ДДС
ЗАПАЗИ ОБЯВАТА

Местоположение: град София, м-т Детски град

Допълнителни данни за имотите в района и сравнение с други райони

Покажи

Период

и 3 месеца

* Средните цени са определени чрез медианна стойност